Dark Light
,

Tiny house 35 m², clé en main standard


Inclus dans le prix
• Bâtiment complet et fini selon les photos
• Installation complète d’électricité, d’eau et d’égouts
• Aération complète
• Salle de bain : Cuvette de toilettes compacte, receveur de douche et robinetterie
• Cuisine : plaque induction 2 feux, réfrigérateur sous plan, évier
• Éclairage intérieur

21 500,00 

Notre maison modulaire facile à aimer pour toutes les saisons. Cette maison entièrement meublée est prête à vivre dès que vous aurez raccordé l’eau, l’électricité et les égouts. C’est parfait comme maison d’hôtes, lieu d’escapade d’un week-end ou location à court terme.
Tiny house modulable est abordable, rapide à installer et offre de nombreuses options adaptées à votre style. De grandes fenêtres remplissent l’espace de lumière naturelle, le rendant ouvert et aéré. Avec le Tiny house modulable, vous obtenez une maison cosy, lumineuse, à la fois élégante et pratique.

Spécification
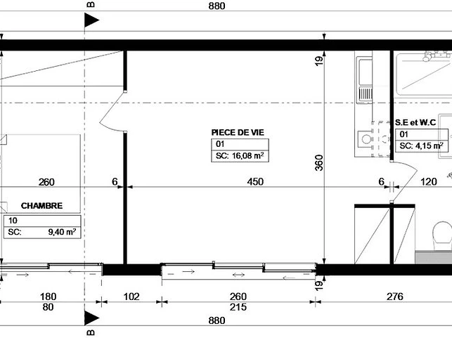
• Mise en page: Chambre séparée, salle de bains, séjour avec coin cuisine, hall
• Dimensions extérieures: longueur 10.0 m, largeur 3.5 m, hauteur 2.9 m
• Dimensions intérieures: longueur 8.6 m, largeur 3.1 m, hauteur 2.5 m
• Isolation: 10 cm PIR
• Windows: Aluminium, 2 verres
• Chauffage: radiateurs électriques
• Climatisation Climatisation en option
• Façade: composite de bois combiné à de l’acier
• Structure de la maison: Acier
• Murs intérieurs: panneaux en acier avec éléments composites en bois

Zone de construction = 35 m²
Salon = 30 m²
Chambres = 3 avec cuisine
Planchers = 1

UGS : BG344I Catégories : , Étiquette :
Dimensions 10 × 3,5 × 2,9 cm

Based on 0 reviews

0.0 overall
0
0
0
0
0

Be the first to review “Tiny house 35 m², clé en main standard”

There are no reviews yet.

NOUS CONTACTER  : Téléphone : 07 73 72 60 60 / contact@logicontainer.com

X

Select at least 2 products
to compare